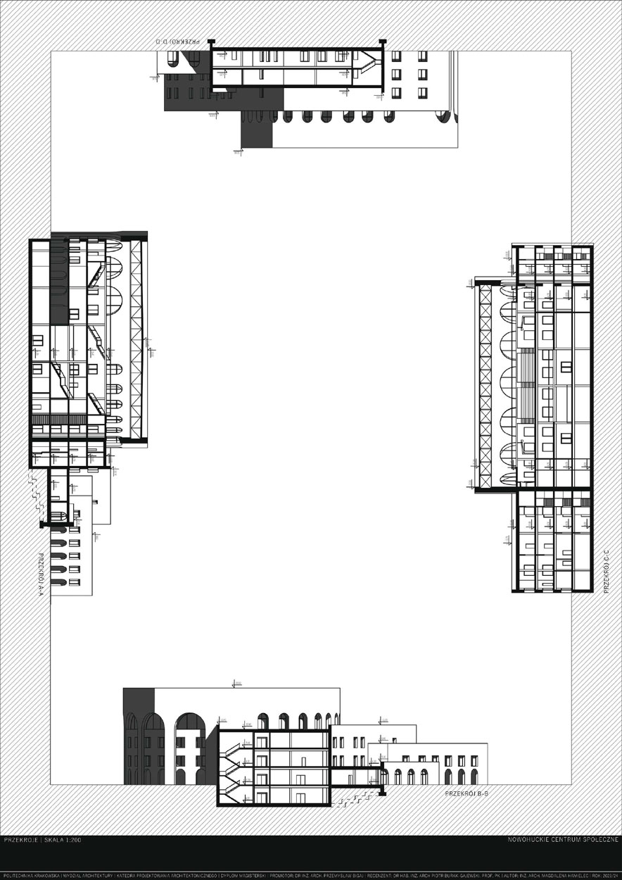
Magdalena Hamielec Grzegorz Twardowski 26 września 2024 Dyplom magisterski Praca dyplomowa magisterska Tytuł: NOWOHUCKIE CENTRUM SPOŁECZNE. Promotor: dr inż. arch. Przemysław Bigaj Nawigacja wpisu Poprzedni Poprzedni wpis: Natalia BanaśNastępny Następny wpis: Klaudia Wołoszyn