Praca dyplomowa magisterska
Tytuł: MONUMENT W MIEŚCIE. MUZEUM SZTUKI W NOWEJ HUCIE.
Promotor: dr inż. arch. Przemysław Bigaj
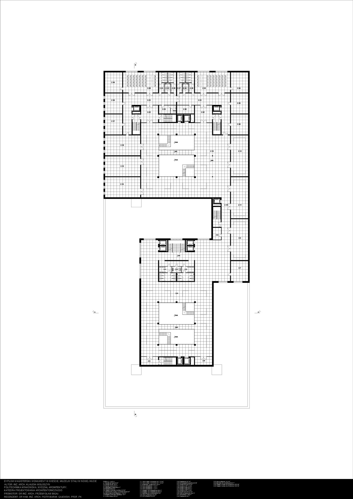
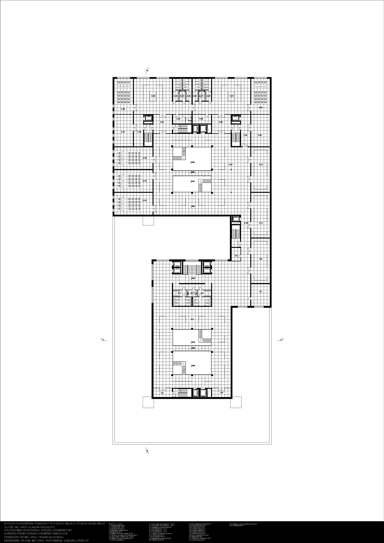
Opis idei: Zadaniem projektowym było stworzenie budynku grającego rolę monumentu miejskiego. Docelowo zadanie to objęło Muzeum Stali w Nowej Hucie. Obiekt zlokalizowano w miejscu obecnego Parku Ratuszowego. Pretekstem do powstania bryły budynku był obraz amerykańskiej malarki – Patsy Krebs. Obraz, z którego czerpana była inspiracja do bryły muzeum powstał na płótnie w roku 1990. Obraz jest symetryczny i zawiera w sobie trzy kolory – biel, czerń oraz dwa żółte kwadraty akcentujące kompozycję. Po wysunięciu wysokości z płaskiego dzieła powstała trójwymiarowa bryła o podstawie prostokąta. Dwie niższe bryły, które nachodzą na siebie wykończone są betonowymi płytami elewacyjnymi co nadaje budowli surowego wyglądu. Swoim ułożeniem nawiązuje on do istniejącego już otoczenia miejskiego poprzez dostosowanie jego wysokości oraz wyrównanie linii elewacji z otaczającą zabudową. Akcentem całego obiektu są dwie wysunięte do góry bryły – na obrazie żółte prostokąty. W projekcie pokryte one zostały blachą kortenowską. Mają one za zadanie tworzyć imitację starych kominów hutniczych nawiązując tym do programu wystaw muzealnych oraz historii miejsca.
