Praca dyplomowa magisterska
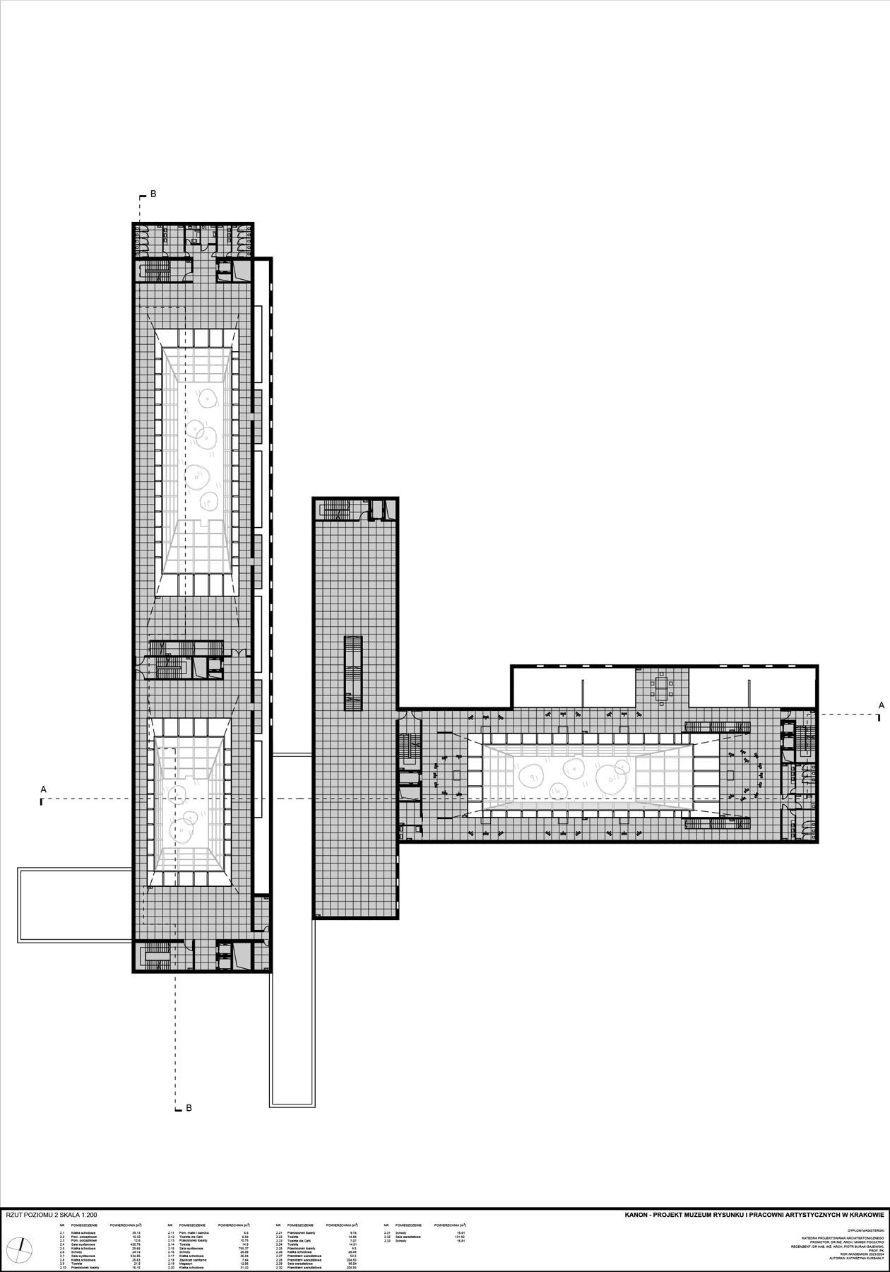
Tytuł: KANON – PROJEKT MUZEUM RYSUNKU I PRACOWNI ARTYSTYCZNYCH W KRAKOWIE.
Promotor: dr inż. arch. Marek Początko
Opis idei: Tematem projektu było zaprojektowanie budynku na wybranej działce na podstawie wybranego obrazu z nurtu konstruktywizmu. Wybrany obraz to “Komposition 1929 A”, autorstwa Waltera Dexela. W założeniu, bryła budynku jest uzależniona i definiowana za pomocą modłów o wymiarach 1.2m x 1.2m. Ze względu na mocno uporządkowany i ortogonalny układ brył na obrazie, lokalizacja w której obiekt został usytuowany to Park Ratuszowy w Dzielnicy XVIII w Nowej Hucie w Krakowie. Statyczna i zdyscyplinowana kompozycja był była elementem warunkującym dobór funkcji do projektowanej bryły. Funkcja projektowanego budynku to muzeum zintegrowane z pracowniami artystycznymi. Obiekt nosi nazwę KANON – Muzeum Rysunku i Pracownie Artystyczne.





















