Praca dyplomowa magisterska
Tytuł: MONUMENT W MIEŚCIE – MUZEUM MUZYKI – BŁONIE.
Promotor: dr inż. arch. Marek Początko
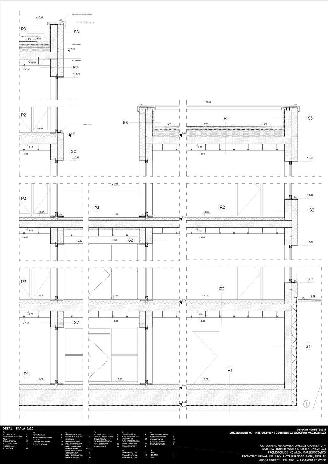
Opis idei: Projekt Muzeum Muzyki – Interaktywne Centrum Dziedzictwa Muzycznego. Ma na celu połącznie technologii sztuki i historii w jednej przestrzeni. Projekt swoją funkcja uzupełnia powstałe niedawno Krakowskie Centrum Muzyki. W rzucie parteru budynek przypominać ma swoim kształtem nutę, składająca się z dwóch walców o takiej samej powierzchni jednym niższym drugim wyższym połączonym łącznikiem co pozwala na zrozumiałe wydzielenie powierzchni wystawowych, reprezentacyjnych, warsztatowych oraz administracyjnych. Wejścia do budynku możliwe od strony wschodniej oraz zachodniej prowadzą do łącznika komunikacyjnego z przestrzeniami wypoczynkowymi, dostępem do kas, sali warsztatowych oraz kawiarni. Po zakupieni biletu odwiedzający udaje się do piony komunikacyjnego gdzie ma możliwość skorzystania szatni oraz sanitariatów zlokalizowanych na kondygnacji podziemnej lub bezpośrednio przemieścić się na ostatnią kondygnacje za pośrednictwem reprezentacyjnej klatki schodowej lub wind. Gdzie zaczyna zwiedzanie wystawy, Zwiedzający zabrany zostaje w podróż od przeszłości do współczesności muzyki po przez eksponaty i interaktywne wystawy przemieszczając się w dół kondygnacji. Na pierwszym piętrze ma on dostęp do tarasu widokowego ulokowanego nad bryłą łącznik, skąd rozpościera się widok na panoramę Krakowa z błoniami na pierwszym planie w kierunku Starego Miasta oraz Wawelu. Z drugiej strony tarasu może zobaczyć nowoprojektowaną przestrzeń zieloną z zewnętrzną wystawa eksponatów muzyki zaklętej w rzeźbie i parku doświadczeń w oddali widząc kopiec Kościuszki. Zwiedzanie wystawy zakończone jest sklepikiem muzealnym z rękodziełami lokalnych artystów. Druga część bryły z dwiema kondygnacjami nadziemnymi na parterze posiada kawiarni wraz z potrzebnym zapleczem oraz dużą sale warsztatową która może zostaw wykorzystana pod wystawy tymczasowe lub wernisaże. Na drugim poziomie znajdziemy pomieszczenia administracyjne oraz przestrzeń przygotowaną pod pracownie audiowizualną, wraz koniecznymi pomieszczeniami pomocniczymi. Kondygnacja podziemna znajduje się pod całym budynkiem oprócz wcześniej wspomnianych szatni oraz sanitariatów znajdziemy tam pomieszczania techniczne oraz magazyny. Mamy także dostęp do parkingu podziemnego, który posiada dodatkowe wyjścia bezpośrednio z parku. Przestrzeń zielona w okuł budynku z ścieżkami przypominającymi pięciolinie gdzie znajdują się eksponaty tworzące muzykę dziki zjawiskom atmosferycznym.

















