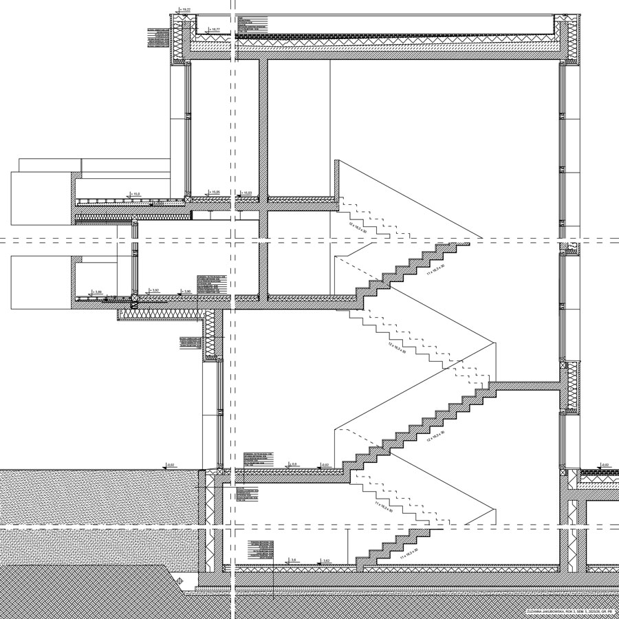
Zuzanna Jakubowska Grzegorz Twardowski 18 lutego 2026 3 rok V semestr Nawigacja wpisu Poprzedni Poprzedni wpis: Magdalena KonikNastępny Następny wpis: Veronica Nowakowska