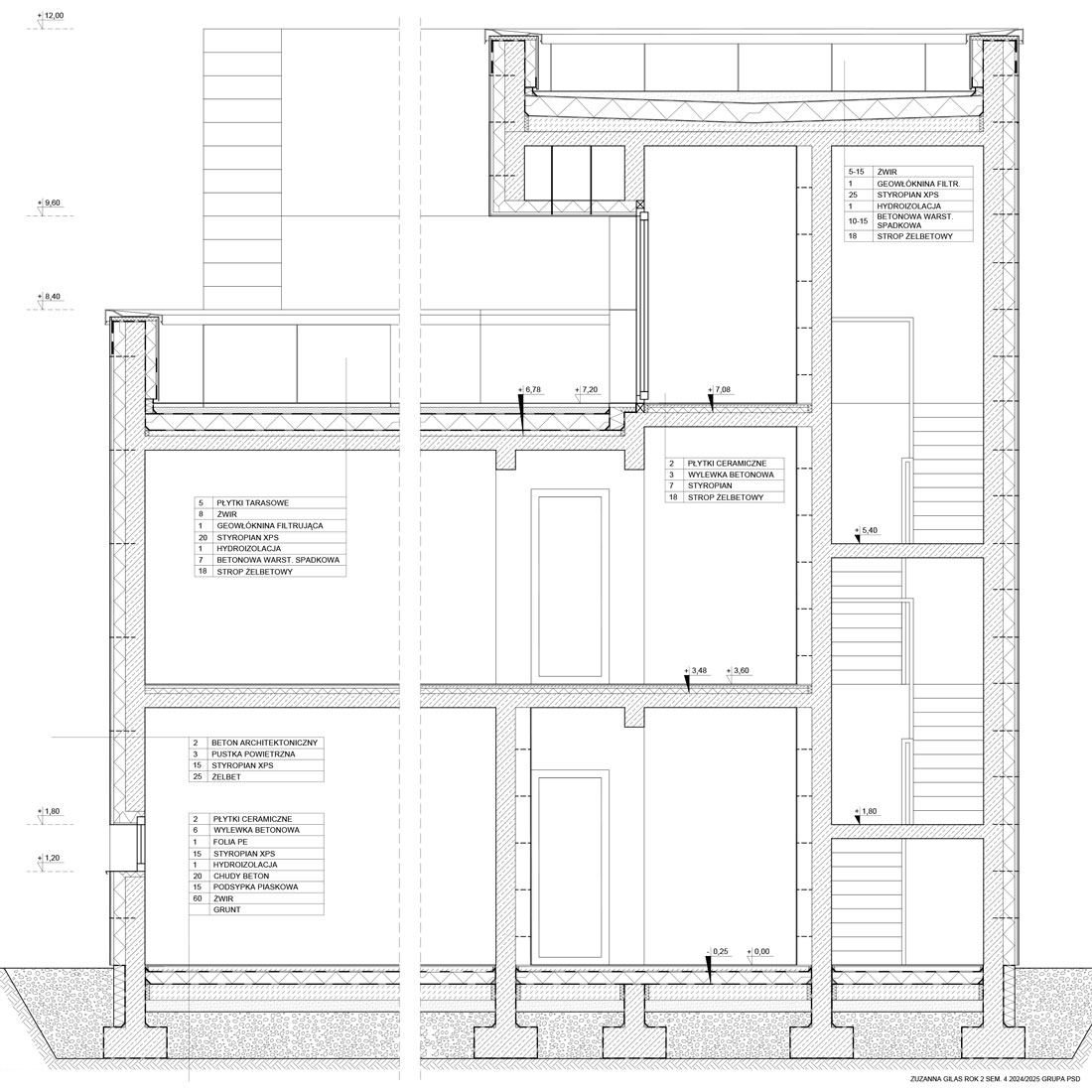
Zuzanna Gilas Grzegorz Twardowski 15 stycznia 2026 Projekty studenckie Nawigacja wpisu Poprzedni Poprzedni wpis: Karolina ListośNastępny Następny wpis: Martyna Hajduk