Praca dyplomowa magisterska
Tytuł: SENSORIUM. CENTRUM NEUROESTETYKI I PERCEPCJI PRZESTRZENI.
Promotor: dr inż. arch. Przemysław Bigaj
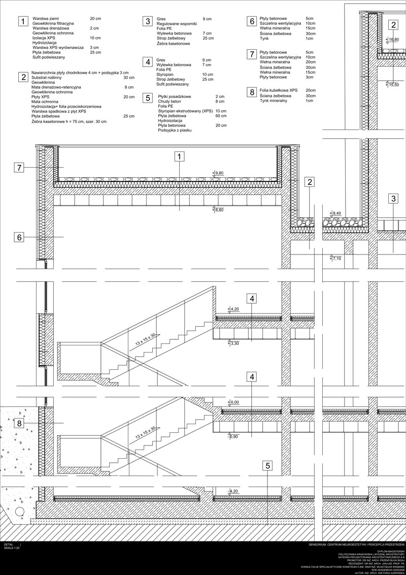
Opis idei: Przedmiotem pracy dyplomowej jest sensorium- centrum neureoestetyki i percepcji przestrzeni, zlokalizowanego na obszarze Starego Miasta w Krakowie, w sąsiedztwie Wawelu oraz rzeki Wisły. Lokalizacja obiektu ma charakter szczególny co względu na wysoką wartość historyczną, kulturową i krajobrazową otoczenia, a także silne znaczenie symboliczne miejsca w strukturze miasta. Projektowany budynek stanowi próbę współczesnej interpretacji przestrzeni muzealnej jako miejsce nie tylko ekspozycji, ale również doświadczenia angażującego zmysły użytkownika i budującego relację pomiędzy człowiekiem, przestrzenią i eksponatem. Bryła obiektu została ukształtowana na podstawie analizę obrazu Carli Badialdi, której abstrakcyjna konwencja geometryczna stała się punktem wyjścia do budowy formy architektonicznej. Przeniesienie zasad kompozycyjnych obrazu w przestrzeń trójwymiarową pozwoliło na stworzenie klarownej, uporządkowanej struktury przestrzennej opartej na relacjach płaszczyzn, proporcji oraz rytmie brył. Zabieg ten umożliwił przekształcenie dwuwymiarowej kompozycji malarskiej w przestrzeń architektoniczną o wyraźnym charakterze formalnym i narracyjnym. Część projektowa zawiera analizę kontekstu urbanistycznego i krajobrazowego. Przedstawiono w niej koncepcja architektoniczną obiektu, jego strukturę funkcjonalno- przestrzenną oraz sposób kształtowania przestrzeni muzealnych w celu budowania doświadczenia sensorycznego. Projekt został opracowany jako obiekt współczesny, który poprzez swoją formę i narrację przestrzenną wchodzi w dialog z historycznym otoczeniem. Projekt sensorium ma na celu pokazanie architektury muzealnej jako medium doświadczenia, przestrzeni, która nie tylko prezentuje treści, ale również kształtuje emocje, refleksje i świadomość.
