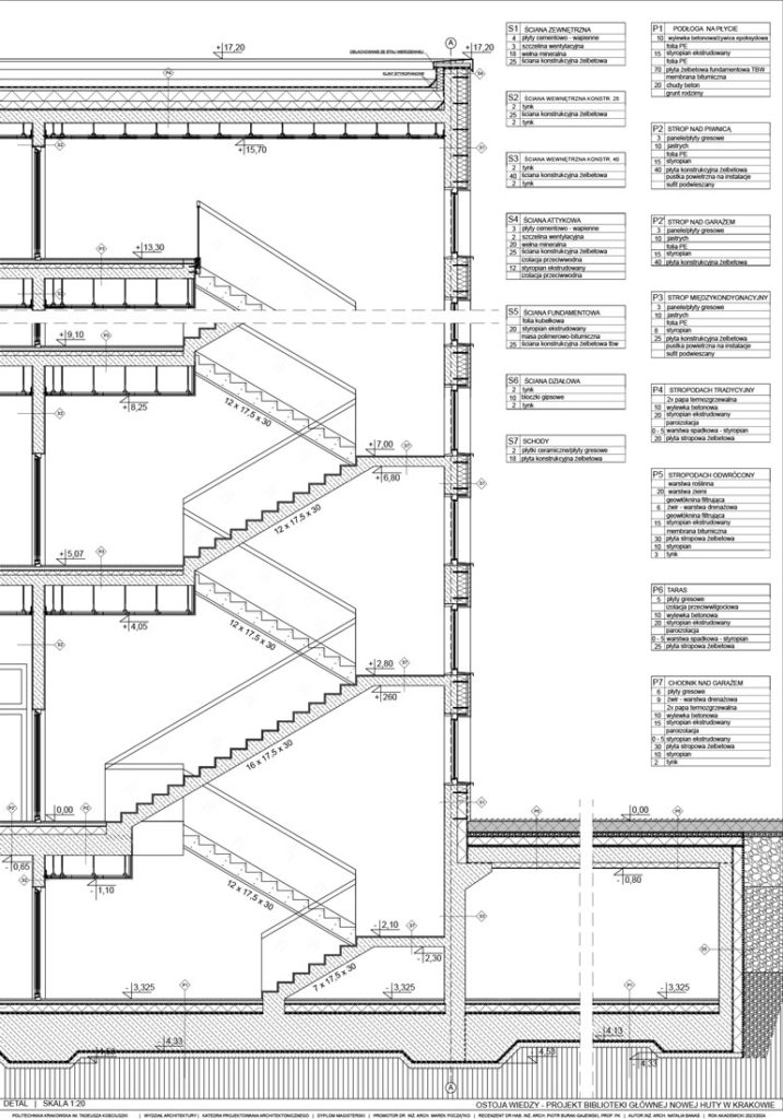
Praca dyplomowa magisterska
Tytuł: OSTOJA WIEDZY – PROJEKT BIBLIOTEKI GŁÓWNEJ NOWEJ HUTY W KRAKOWIE.
Promotor: dr inż. arch. Marek Początko
Opis idei: Idea projektu opiera się na współpracy architektury z sztuką, w tym przypadku sztuką abstrakcyjną. Istotna była więź z wybranym dziełem malarskim, obrazem Kazimierza Malewicza pt.: „Supremus No. 55”, które scalono z projektem architektonicznym. Kształty na płótnie stały się bryłami i formami przestrzennymi na płaszczyźnie działki, a ich wnętrze dostaje nowe funkcje. Prostopadłościenne kształty przenikają się nawzajem i łączą w jedną abstrakcyjną całość. Forma projektowanego budynku jest mocno dynamiczna, wydaje się być w ciągłym ruchu, linie łączą się, w niektórych miejscach odbiegają zupełnie od kątów prostych. Wszystkie te formy zabrane z obrazu zostały wyciągnięte na różne wysokości oraz zastosowano odmienne podziały a czasami nawet inną kolorystykę w gamie szarości, by te
bryły w przestrzeni również zdawały się być na pozór oddzielnymi kształtami. Przeszklenia zostały dobrane tak, aby nie burzyć charakteru z obrazu Malewicza, są proste, prostokątne, jedynie w niezbędnych miejscach. Zastosowano również wiele wycięć w bryłach, aby stworzyć otwartą przestrzeń, gdzie można by było się swobodnie poruszać i korzystać z
obiektu. Budynek ułożony został na działce tak, że tworzy zamknięcie kompozycyjne Nowej Huty przy cieku Zalewu Nowohuckiego na północy. Projekt jest zamknięciem, punktem będącym granicą całego geometrycznego założenia dzielnicy Krakowa, jednocześnie będący nowym ważnym punktem kulturalnym i rekreacyjnym tej okolicy.




















