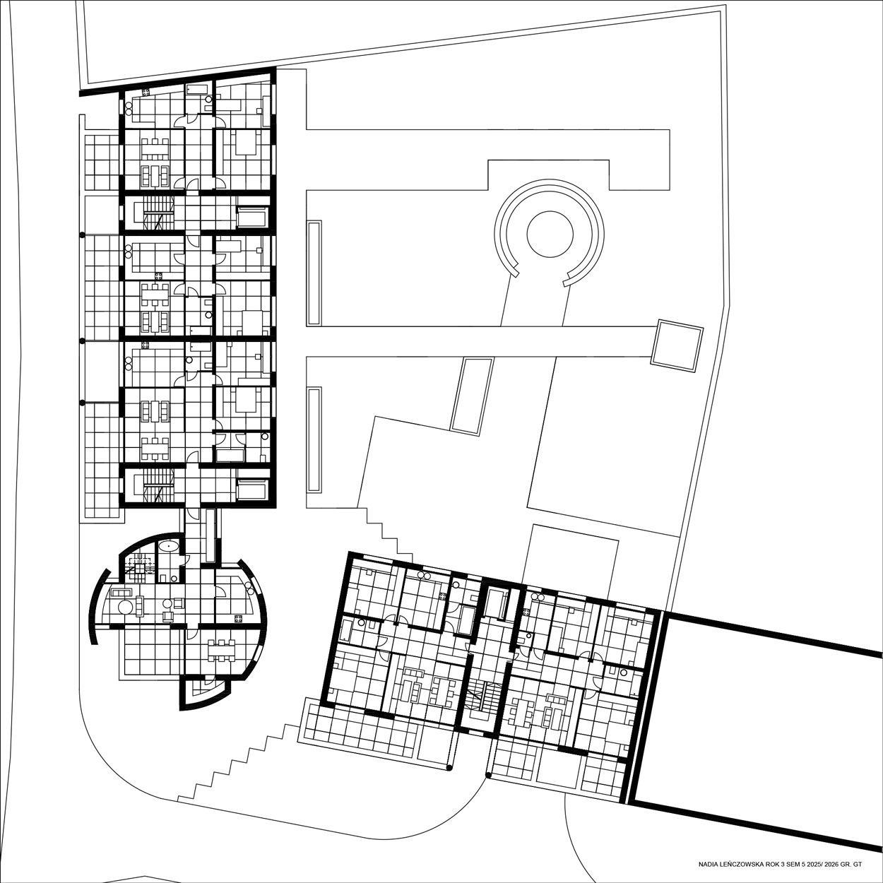
Nadia Leńczowska Grzegorz Twardowski 30 stycznia 2026 3 rok V semestr Nawigacja wpisu Poprzedni Poprzedni wpis: Kacper KnapczykNastępny Następny wpis: Łucja Krzyszkowska