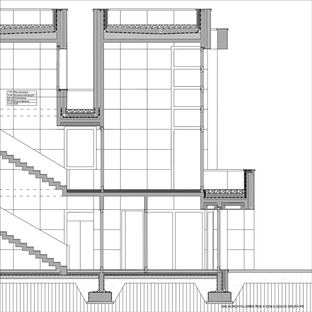
MAŁGORZATA LOREK Grzegorz Twardowski 8 października 2025 2 rok IV semestr Nawigacja wpisu Poprzedni Poprzedni wpis: NATALIA MATYJEWICZNastępny Następny wpis: Emilia Marcińczak