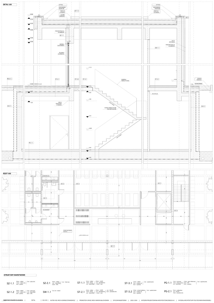
Praca dyplomowa magisterska
Tytuł: Cmentarz Kraków Olszanica.
Promotor: Dr inż. arch. Marcin Głuchowski
Wydział Architektury Politechniki Krakowskiej
Praca dyplomowa magisterska
Tytuł: Cmentarz Kraków Olszanica.
Promotor: Dr inż. arch. Marcin Głuchowski
Wydział Architektury Politechniki Krakowskiej