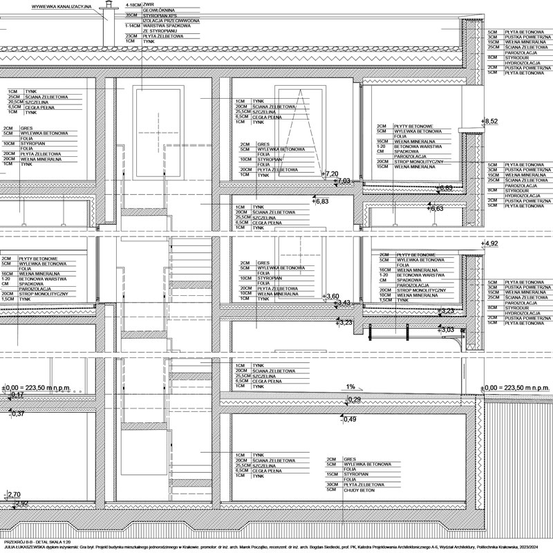
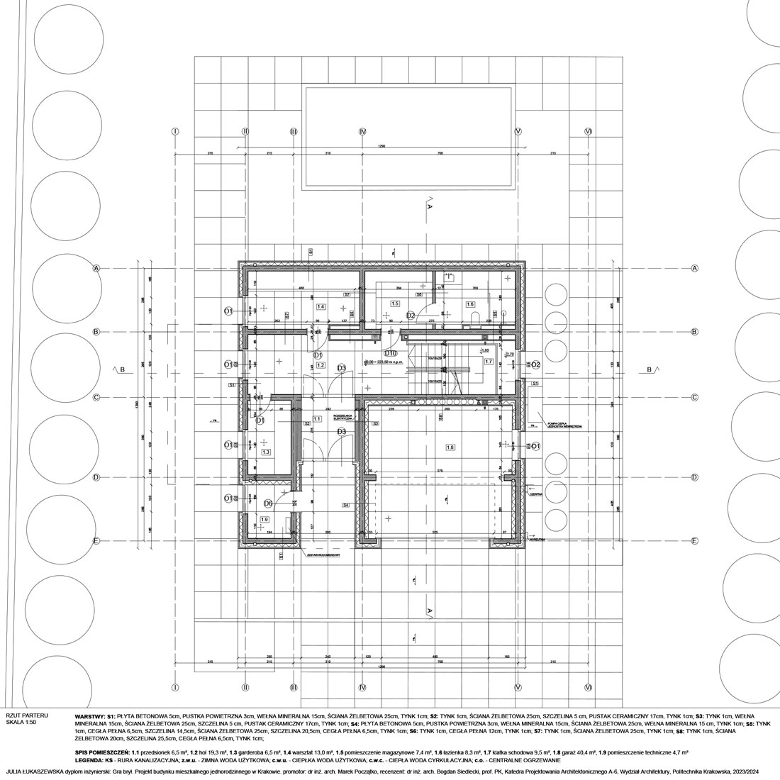
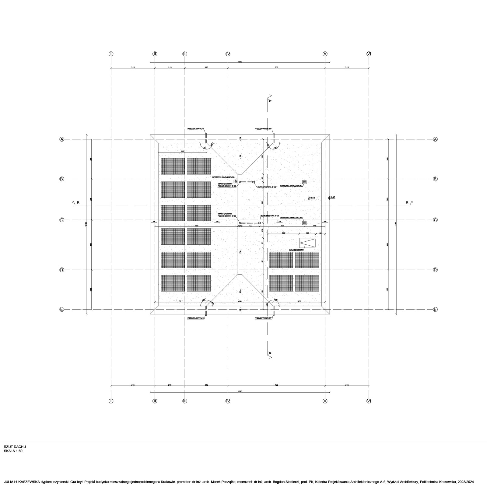
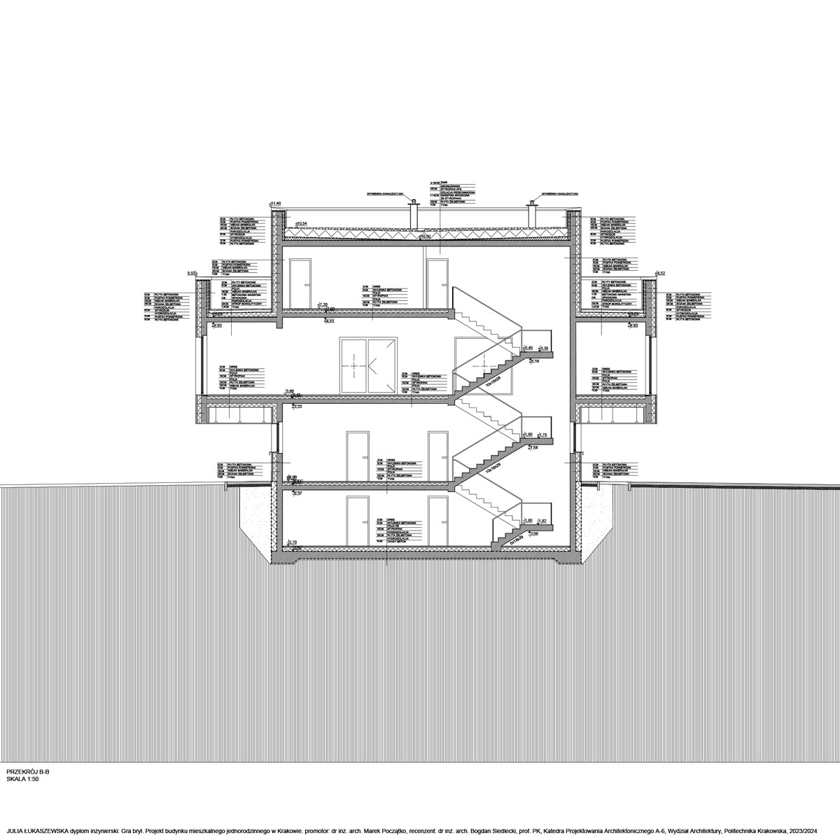
Julia Łukaszewska Grzegorz Twardowski 18 lipca 2024 Dyplom inżynierski Praca dyplomowa inżynierska Tytuł: Gra brył. Projekt budynku mieszkalnego jednorodzinnego w Krakowie. Promotor: dr inż. arch. Marek Początko Nawigacja wpisu Poprzedni Poprzedni wpis: Katarzyna KuźniarNastępny Następny wpis: Marcelina Bil