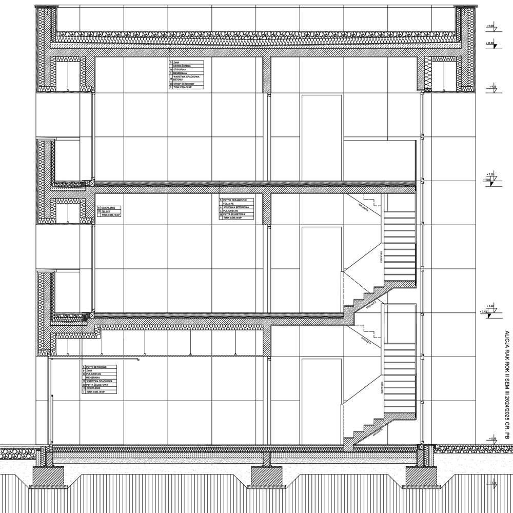
Alicja Rak Grzegorz Twardowski 2 lutego 2025 2 rok III semestr Nawigacja wpisu Poprzedni Poprzedni wpis: Aleksandra RakNastępny Następny wpis: Weronika Adamczyk